Saltar al contenido
PROYECTOS
ESTUDIO
CONTACTO
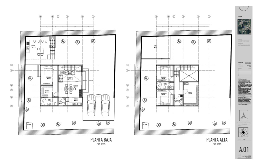
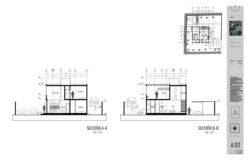
Casa silao
CASA SILAO
PROYECTO: FRACTAL ARQUITECTOS
VISUALIZACIÓN: FRACTAL ARQUITECTOS
2024
Suscribe
Suscrito
Fractal Arquitectos
Suscríbeme
¿Ya tienes una cuenta de WordPress.com?
Inicia sesión
.
Fractal Arquitectos
Suscribe
Suscrito
Registro
Acceder
Copiar enlace corto
Denunciar este contenido
Ver la entrada en el Lector
Gestionar las suscripciones
Contraer esta barra